CASTELLI CALEPIO -BG- Concorso per ampliamento Istituto Primario di Cividino

L’edificio esistente è costituito da un corpo di fabbrica allungato (assai severo) con distribuzione dei locali a corridoio, esteticamente connotato dall’alternanza intonaco-mattoni.  La palestra con i relativi spogliatoi sono collocati in un corpo autonomo. 
L’ingresso centrale è dotato di un parcheggio e nelle vicinanze c’è ampia disponibilità di parcheggio.  Sul lato ovest dell’edificio c’è un’area libera di discrete dimensioni attualmente destinata al gioco all’aperto, e che rappresenta l’unica possibilità di ampliamento della scuola. Il contesto urbano è rappresentato da piccoli-medi edifici, ad uno o due piani, isolati nel lotto, con tradizionale copertura a falde. 
 
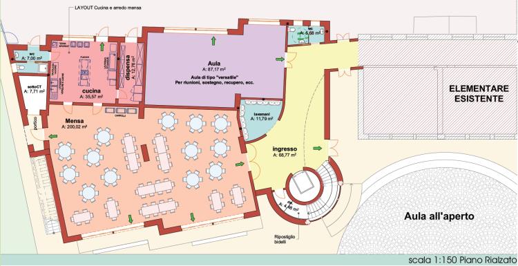
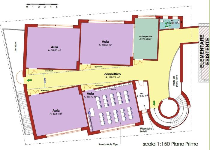
 Di seguito si illustra lo schema distributivo: 
piano terra: mensa e lavamani, cucina e relativi servizi, aula di dimensioni maggiorate, servizio igienico per disabili; 
piano primo: 4 aule standard, aula speciale per i recuperi individuali (eventualmente collegabile alla confinante, servizio igienico per disabili, ripostiglio. 
Le caratteristiche salienti di questo schema distributivo sono: 
- la mensa è aperta direttamente sul campo da gioco (al sole nel pomeriggio), in modo che gli alunni possano uscire a giocare dopo il pasto; 
- la cucina ha un accesso riservato ed indipendente; 
- l’aula speciale, di dimensioni maggiori di quella standard, dotata di uscite di sicurezza dirette all’esterno, può essere utilizzata per riunioni o assemblee; 
- mensa ed aula speciale inoltre possono agevolmente essere utilizzate dalla comunità in orario extrascolastico. 



 
 


Torna all'indice dei lavori


 
?
  Studio Adenti & Arata Architetti Associati sede legale :via Fulcheria 36, 26012 Castelleone (CR) P. Iva 01196730194 - Privacy Policy