SPINO D'ADDA -CR- CENTRO SPORTIVO COMUNALE

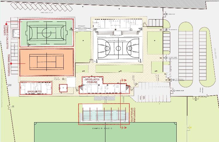
Su una vasta area posta tra la via Milano e la Statale Paullese sorge il Centro Sportivo Comunale, costituito da tre diversi nuclei, edificati in tempi diversi.
Sulla base delle richieste e degli obiettivi dell’Amministrazione comunale il progetto prevede un coordinamento generale del centro esistente.
Sono stati studiati e realizzati una serie di interventi volti alla messa in sicurezza dell’intero complesso sportivo attraverso la messa a norma e la copertura delle tribune, la separazione dei percorsi tra atleti e spettatori e la riorganizzazione della viabilità pedonale e carraia.
Sono stati inoltre completamente ristrutturati gli spogliatoi sottostanti la tribuna e si è provveduto all’eliminazione delle barriere architettoniche dell’intero sistema.
 




 
 


Torna all'indice dei lavori


 
?
  Studio Adenti & Arata Architetti Associati sede legale :via Fulcheria 36, 26012 Castelleone (CR) P. Iva 01196730194 - Privacy Policy