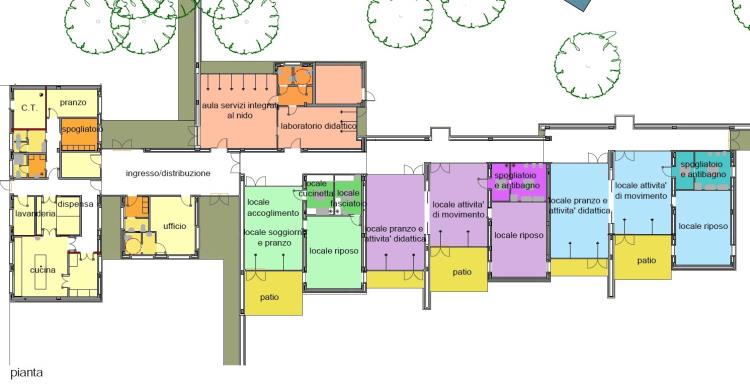
CODOGNO -LO- NUOVO ASILO NIDO

A Partire dal lotto assegnato, che si presenta lungo e stretto, è stato deciso di sviluppare il volume lungo l'asse di sviluppo maggiore dell'area ovvero est-ovest.

L'edifico si articola in :

- 3 sezioni destinate ad attività didattiche (unità lattanti, semidivezzi e divezzi);

- 1 parte dedicata a servizi generali;

- 1 parte adibita sia ad uso privato dell'asilo che per attività integrate con il pubblico.

L'area esterna è caratterizzata da un elevata presenza di verde che costituirà lo spazio destinato alle attività all'aperto e potrà essere attrezzato e organizzato secondo i programmi dell'asilo.




 


Torna all'indice dei lavori


 
?
  Studio Adenti & Arata Architetti Associati sede legale :via Fulcheria 36, 26012 Castelleone (CR) P. Iva 01196730194 - Privacy Policy